Default £575 PCM

1 bedroom House to rent

21 Mount Road, Hinckley, LE10

  • House
  • 1 bed
  • 1 bath
  • 2 reception

Key Features

  • Available Now
  • Ensuite Room
  • Ground Floor
  • Bills Inclusive
  • Fully Furnished
  • Large Shared Kitchen and Living Areas
  • Single Occupancy Only
  • Close to Town Centre & Train Station

Description

***AVAILABLE NOW***

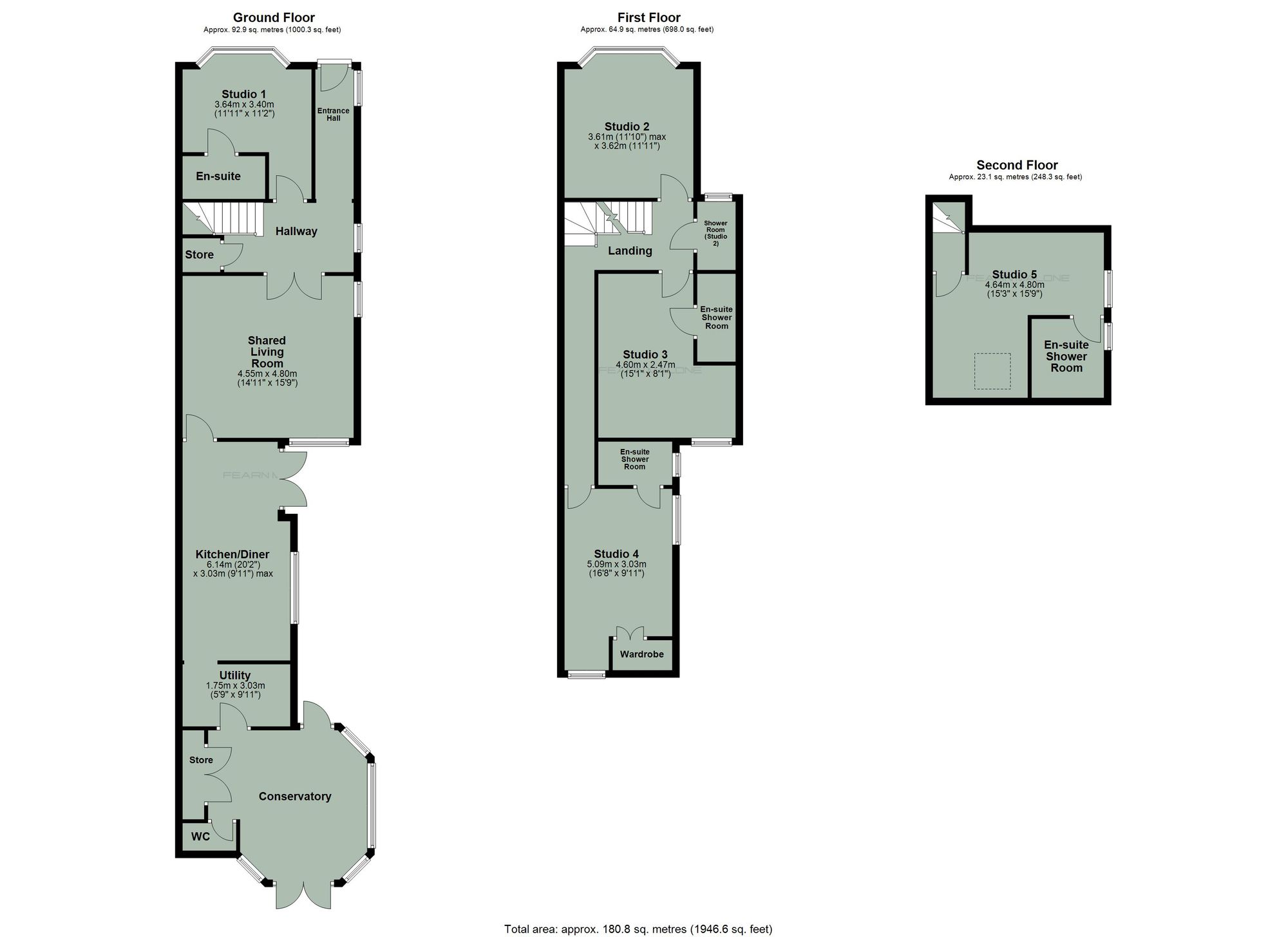
Fearn Malone are pleased to welcome to this fantastic 5-bedroom house in the heart of Hinckley! Nestled in a prime location, this property is now available for rent. With an ensuite room, on the ground floor (for easy access) offering a fully furnished space where bills are included.

Enjoy the large shared kitchen and living areas, including a cosy living room, spacious kitchen, laundry room, bright conservatory and back garden. This room is for single occupancy only, providing a homely atmosphere ideal for working professionals in the area.

Situated close to the town centre and train station, convenience is at your doorstep. Explore the vibrant town and easily commute to nearby areas.

Don't miss out on this ensuite room in a 5-bedroom house in Hinckley. Perfect for those seeking a comfortable living space with a touch of convenience.


Location


Floorplan

Floorplan

EPC

EPC for 21 Mount Road, Hinckley, LE10

£ 0
£ 0

Your estimated gross rental yield would be:

0.00%
Share this property